Salas Prolife - Jardim Canada

Esta obra aconteceu no bairro Jardim Canada, Nova Lima onde o cliente precisava preparar todo o espaço para adequar as suas necessidades. A obra envolveu aumento da área construída do imóvel, criação de repartições (consultórios), Assentamento de porcelanato, Instalação de pias, bancadas e afins, além de todo um serviço de pintura Interno e externo.

Para melhor expor essa obra a mesma foi dividia em três: Fachada, área de recepção e área das salas e consultórios.

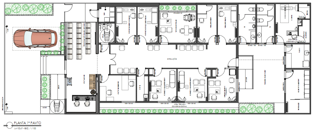
Neste post traremos a obra realizada na parte interna, onde foi feito a criação de 12 salas sendo essas: Banheiro PNE, área de resíduos sólidos, eletrocardiograma, eletroencefalograma, oftalmologia, audiometria, espirometria, laboratório, duas salas para atendimento clinico, DML e administração.

Iniciamos a obra demolindo as paredes de meia altura já existente e realizando a limpeza do local.

Posterior a isso foi a hora de iniciarmos a criação das divisórias, que foram feitas em drywall. Em concomitância, foi realizado a hidráulica de todas salas, pela necessidade de instalações de lavatórios em todas elas, não havia infra hidráulica nestes pontos.

Depois partimos para instalações das portas e rebaixamento do teto com gesso liso. Nesta etapa também foram feitas as instalações dos equipamentos de ar condicionado com toda infra elétrica e de refrigeração.

Nesta obra conseguimos aproveitar grande parte do piso existente, porem em alguns locais foram necessários recomposições e em outros realizar o assentamento de porcelanato no piso todo.

O banheiro PNE, além de ter sido feito toda infra hidráulica e elétrica, também foi necessário revestir todas as paredes com porcelanato.

Para finalizar foi realizado o remanejamento de todas as luminárias e interruptores.